
vespucci tower
Location : miami, FL
Area : 35,000 S.F.
Phase : design development (board approved)
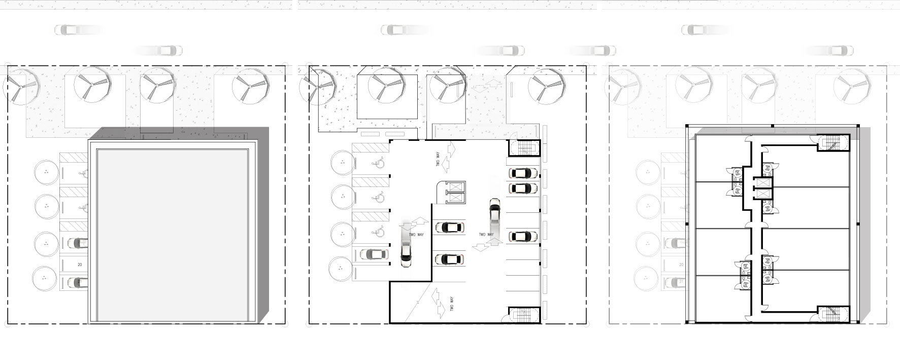
The Vespucci Towers is located in Miami, FL. The bottom floors serves the public with retail shops to promote a pedestrian friendly environment while the garage accommodates both the retail and mixed use offices above. Each floor amounts to 1600 sf that has flexible layouts to allow for multiple tenant configurations.



