the venetian
Location          : miami, FL 
Area                      : 75,000 S.F.   
Phase                  : design development
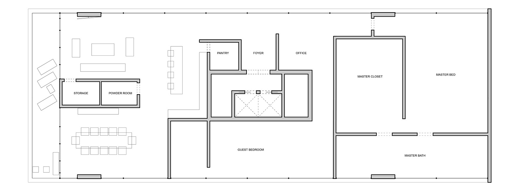
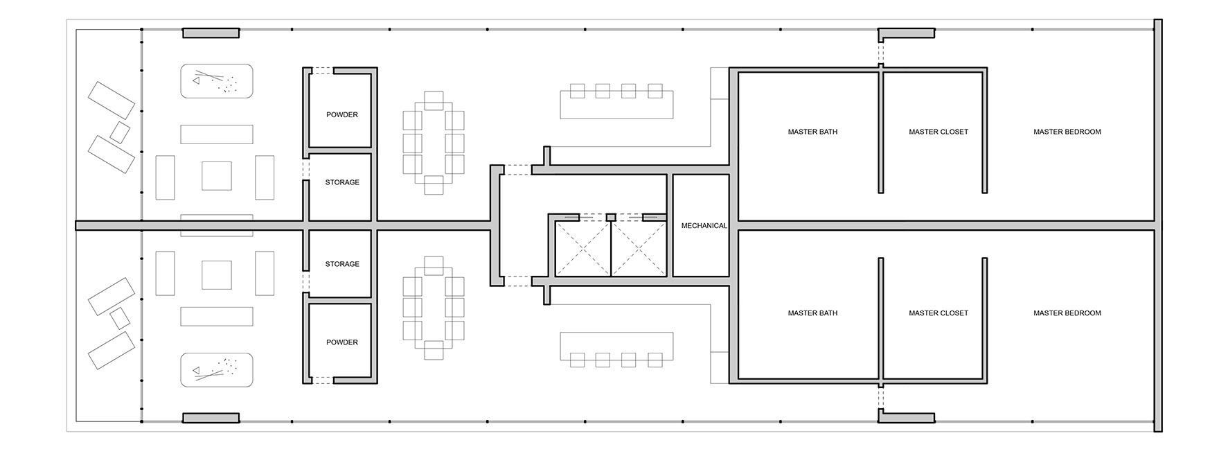
The Venetian is a residential tower based in the center of Miami bay. It is a 16 story tower in which each floor is a penthouse private apartment. The building is designed to provide optimum views to all sides of the bay while it also provides optimum privacy. Each floor opens up to the bay on all its sides boasting a terrace and dramatic views from the every room in the building. The bathrooms present minimal fixtures by “Cosmic” which blend into the minimal feel of the building shell.  The building is also equipped with a system of rolling shades for privacy, shade and sunlight. The Biscayne also has a two story interior/ exterior garden entry area with a gym and café area as well as a roof pool for residents and guests.
Back to Top