
The 826 house
Location : lake worth, FL
Area : 3,500 S.F.
Phase : completed
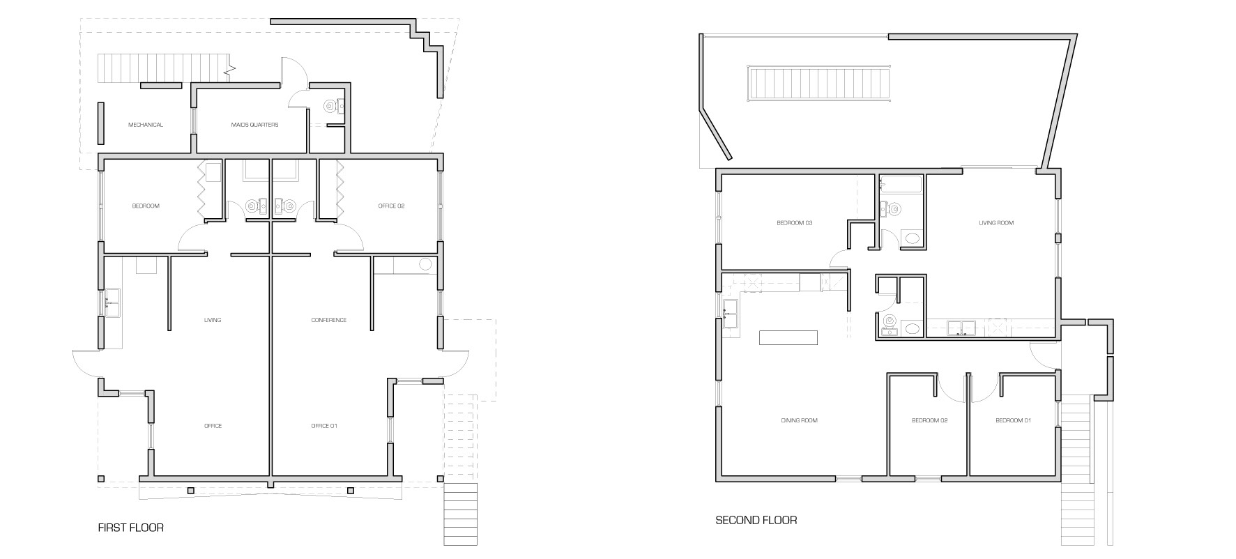
The 826 house is a house that was converted from a 3 unit apartment building. The building was renovated inside and out to create a work/ live building that sits in one of South Florida’s most famous regions. The house design included a terrace, gardens, front façade and cabana building with a pool. The privacy gate designs were of particular interest as the house sits on a busy commercial street which needed design and security concerns.


diagrams


Visual Renderings



visual renderings:




Visual Renderings

Visual Rendering


Visual Renderings










sketch

Visual Rendering



Visual Rendering




Visual Rendering

