
rabbit ears residence
Location : steam boat, colorado
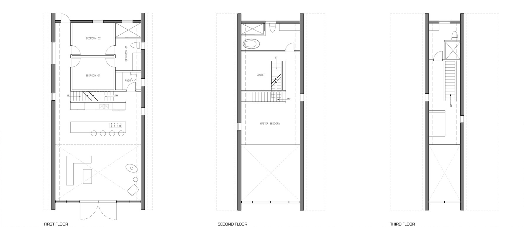
Area : 3,750 S.F.
Phase : design development
The main goal for Rabbit Ears Residence is to create an architecture that is noninvasive to its surrounding. The 3 Acre site that sits at the highest elevation in the area (9500’ NGVD) in interpreted as a n inherent and pure landscape. The architecture that co-exists shall be representative of the sites inherent qualities. 3 pure geometries , A triangular pyramid, cube, and sphere contributes to various functions on the site. The project is situated directly west of the continental divide which is the principal, and largely mountainous, hydrological divide of the Americas. The Continental Divide extends from the Bering Strait to the Strait of Magellan, and separates the watersheds that drain into the Pacific Ocean from those river systems that drain into the Atlantic Ocean (including those that drain into the Gulf of Mexico and the Caribbean Sea), and along the northernmost reaches of the Divide, those river systems that drain into the Arctic Ocean.














