Lehigh villas
Location          : lehigh acres, FL 
Area                      : 2,352 S.F.   
Phase                  : under construction
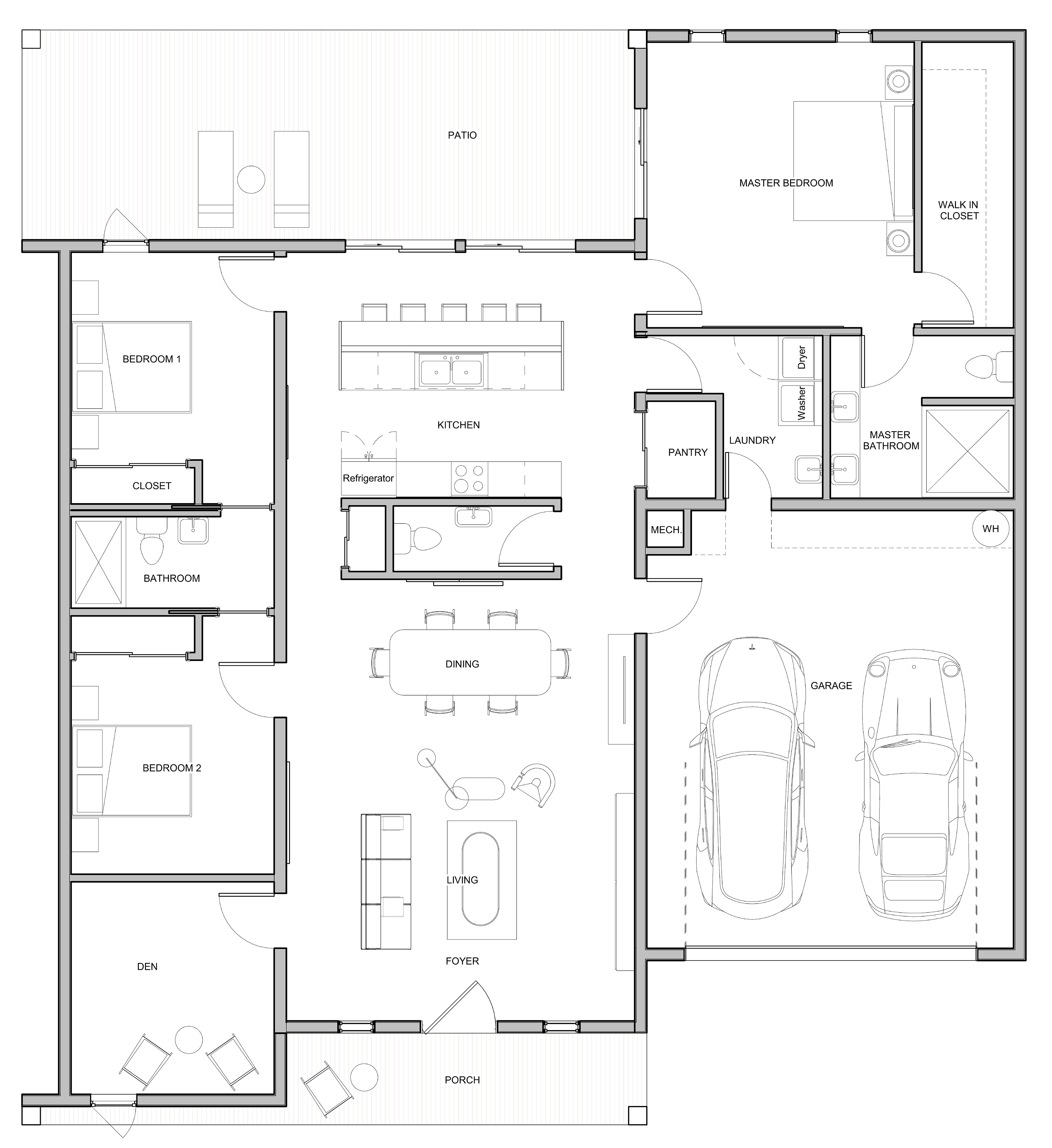
thIS PROJECT focuses on the new construction of a single family residence that is affordable and minimal. there are two variations to this residence, one is larger then the other, to accomodate different income levels and diverse family types.  the  The design intent is to have the additions reflect the clients MODERN MINIMAL STYLE while ALSO respecting the FLORIDA VERNACULAR THAT IS COMMON IN THAT AREA .

LARGER VARIATION

SMALLER VARIATION

the living and dining room are in the entry space of the single story residence. the kitchen faces the rear backyard. the central space has access to the bedrooms that are arranged on either side. this view is of the master bedroom.
pool option:
SMALLER VARIATION:
 CONSTRUCTION PROGRESS IMAGES
Back to Top