
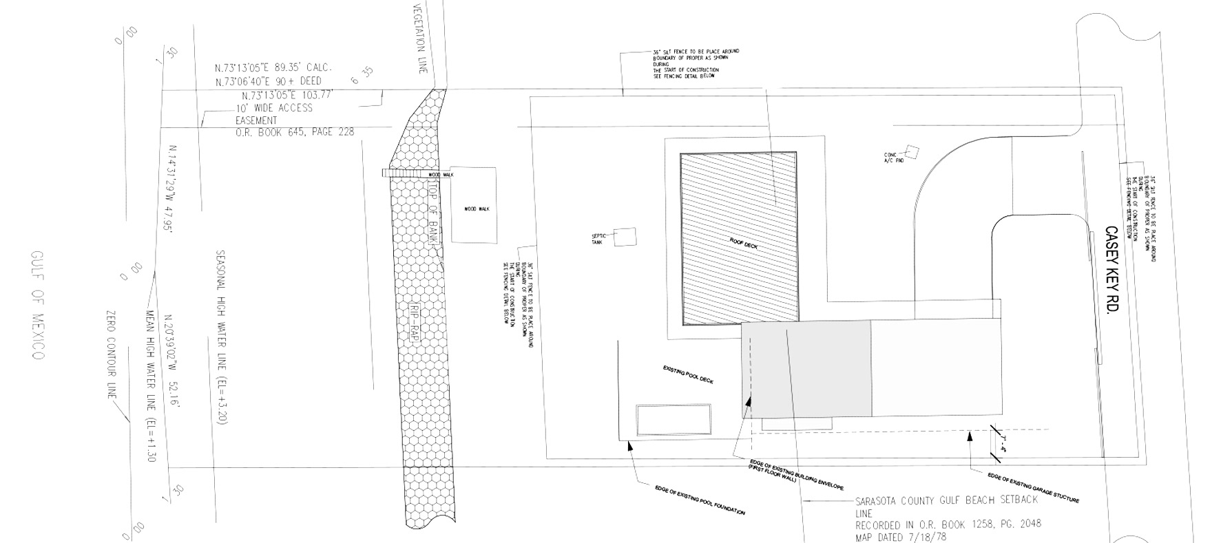
jecik house
Location : sarasota, FL
Area : 5,500 S.F.
Phase : design development
The Jecik House is located on Casey Key, Florida where there is a great mix of modern architecture stretching from Paul Rudolf, Toshiko Mori and Carl Abbott. The stark white volumes of the house sits in contrast to the lush field of natural landscape which needed to be preserved. The house also boasts a 1200 sf terrace which can be accessed from the gardens or the second floor.






