
conservation foundation
Location : sarasota, FL
Area : 3.5 acres
Phase : completed
The main house at the Conservation Foundation of the Gulf Coast is the center piece of a registered historic project that boasts 16 buildings on campus. The campus and the main building had extensive work done to it from the foundations to roof replacement. The main house was formerly a residence for a family which needed to be converted into a public building complete with a new elevator, ADA access, structural changes and interior renovations. Plans and engineering by our firm helped secure an $8 million dollar federal grant for the purchase and subsequent renovation of this project

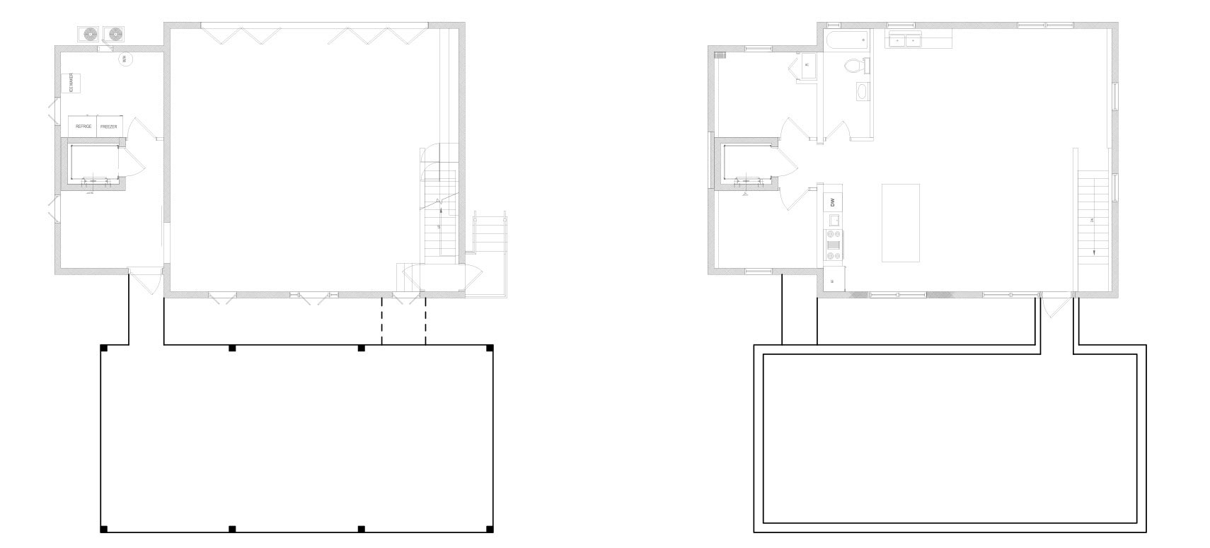
The carriage house at the Conservation Foundation of the Gulf Coast is the center piece of a registered historic project that boasts 16 buildings on campus. The carriage house building had extensive work done to it from the foundations to roof replacement. The carriage house was formerly a storage garage for a family which needed to be converted into a public building complete with a new elevator, ADA access, structural changes and interior renovations. Plans and engineering by our firm helped secure an $8 million dollar federal grant for the purchase and subsequent renovation of this project. This building is used for the prized international “artist in residence program” where artists live in the building to work for several months at a time.
















The bathroom building at Bay Preserve was commissioned for the Conservation Foundation of the Gulf Coast. This building sits on a historic campus that has 6 buildings for the foundation. The campus is used for the foundations work, events and teaching activities. The bathroom building was designed to look “transparent” in a field of historic buildings by having a green confederate jasmine vine that covers the outside of it. This building is handicap accessible and displays a signature modern railing in order to distinguish the new structure from the rest of the period historic buildings.








