
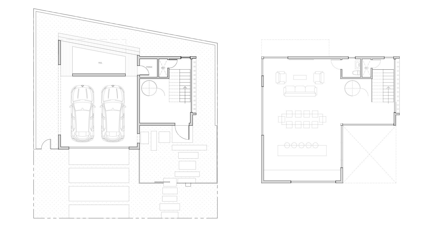
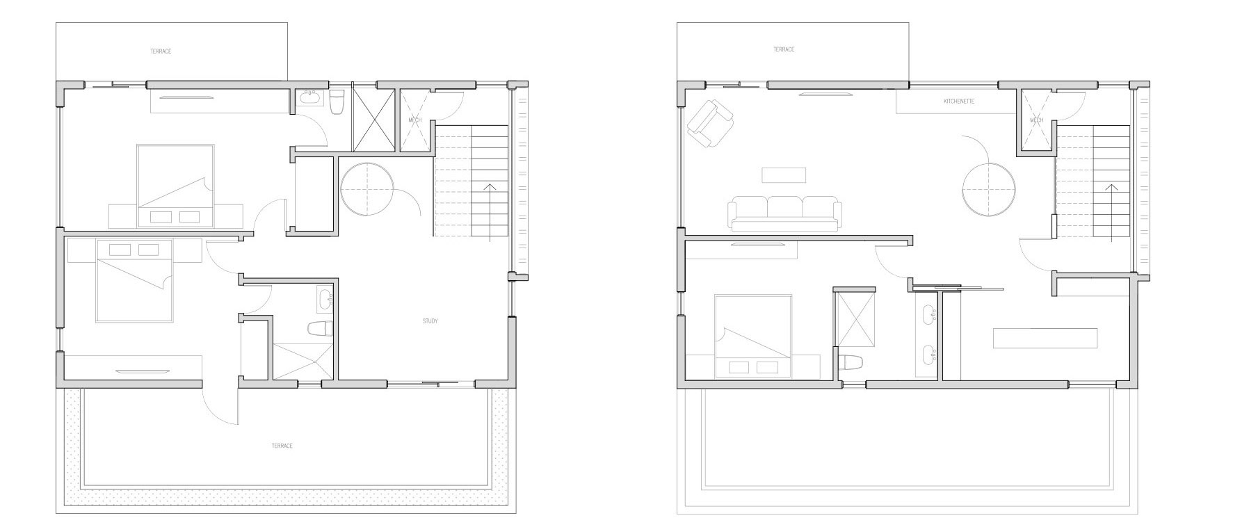
casa eva
Location : Miami, FL
Area : 4,200 S.F.
Phase : Design Development
Casa Eva is a testament to creating the optimum space in a thriving urban environment. This house was a unique opportunity to create an urban gem from a site that is 50 foot by 50 foot square. The house has the advantage of a generous vertical zoning rule that allows for a five story structure which makes it Miami Beach's first "Pencil Tower" single family home. Structures like this are common in larger city's in Europe and Asia but a first for Miami Beach and the rest of Florida.
The design takes into account several key factors. The first design item was to take into account the rising sea level and insure that the design will still be relevant with the rising sea level calculation for Miami Beach. The other major factor is the materials used which identify with a beach culture using coral stone and rich hardwoods as accents. The last major item for design was creating an identity with the mid century modern design that exists throughout Miami Beach. Our firm worked vigorously with the famed architectural mid-century historian Heather Lakers to provide the design team with exacting details of building systems and decor.




















