
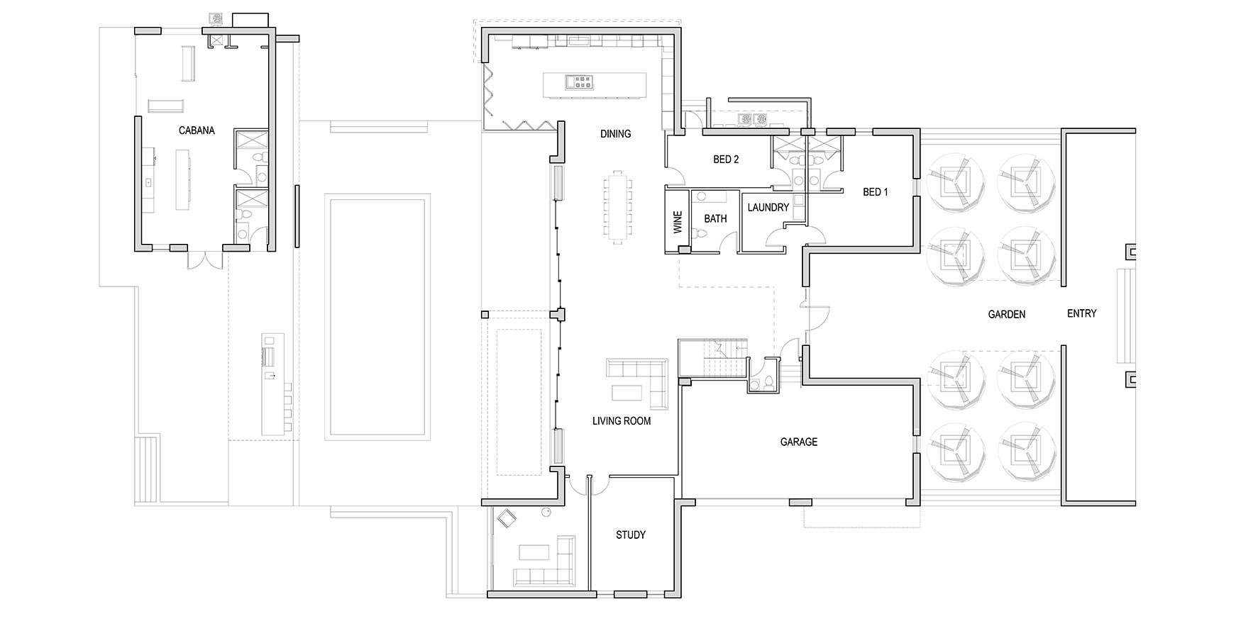
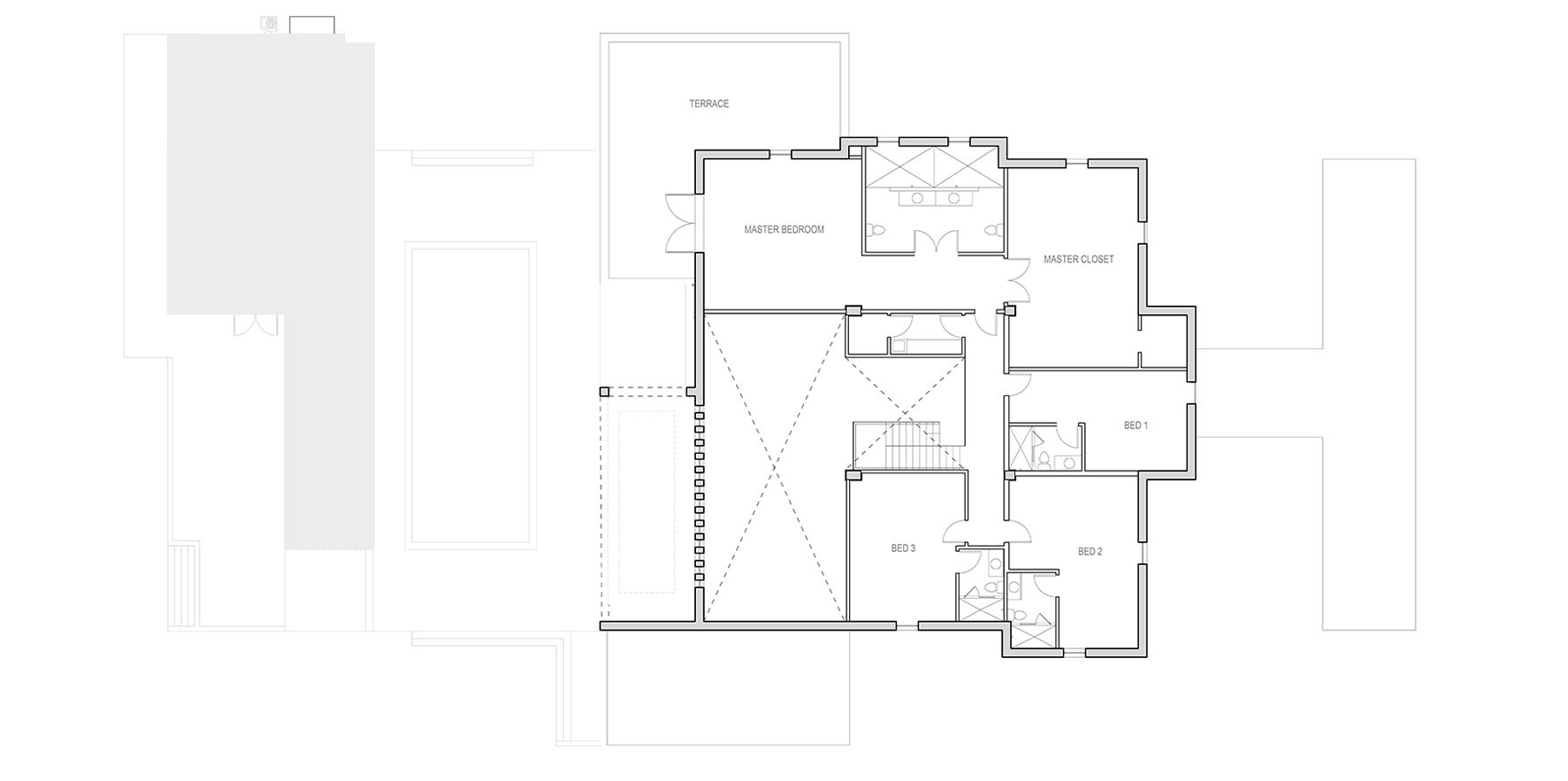
Basile Residence
Location : Miami, FL
Area : 18,000 S.F.
Phase : complete
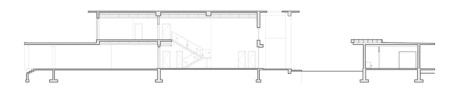
The Basile Residence sits on 2 acre lot in the City of Pinecrest, Miami-Dade, Florida. The house is based on a series of layers that begin with a procession into the front of the house. The front structure is a transformation of a typical historic porch meant to receive guests and host events at the home. The next layer is a garden area which not only separates the house but also creates an organic pause between the inside and outside of the home. Upon entering the home there is a larger volume which gives a sensation of openness as if the sky that was left behind in the front of the first structure while the last and final layer is a series of complex geometries serving as a transition from the structures interior to the outdoor pool and cabana area.
The home is a highly efficient with Insulated Concrete Forms (ICF) Solid concrete structure with 8 times the wall insulation as required by the strict Florida Building Code. There exterior oscillates between raw coral stone and stucco evoking a tropical motif. The interior introduces surfaces with contrasting wood and glass for its features sharp modern features. The kitchen, closets and cabinets were supplied by the famed Molteni & C of Italy who has made this home a portfolio home for their brand.





























