
appel residence
Location : lantana , FL
Area : 4,500 S.F.
Phase : completed
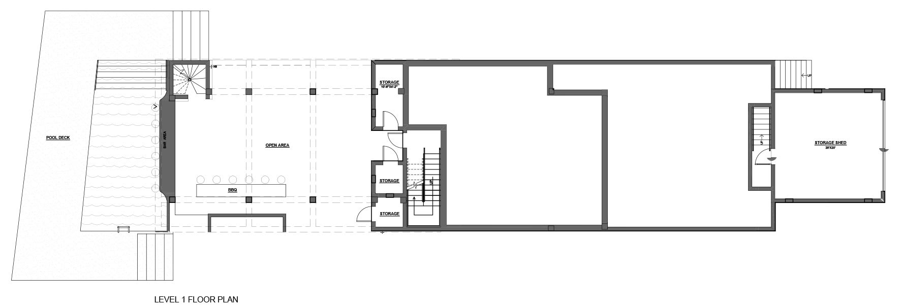
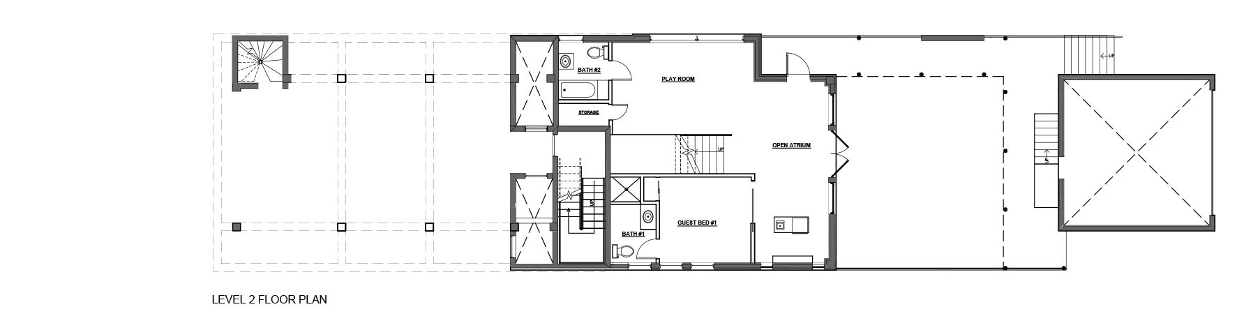
The Appel Residence is a water front home on Hypoluxo Island which presented a serious challenge to design a home directly on the water on a lot which is 50 foot wide. The solution was a multilevel home that takes its theme from the water while providing a program with terraces for each bedroom, a walkway around the entire main house and spectacular views of the water side. The home is a highly efficient using Insulated Concrete Forms (ICF) Solid concrete structure with 8 times the wall insulation required by the strict Florida Building Code. The home also boasts a robust SpacePak water chiller system which takes only 16 amps to cool the entire house along with Solarban XL70 glass, undoubtedly the highest performing glass available today. The house is also designed several feet above the required FEMA flood plane which protects it for years to come from floods and storms.
The concept plan is intended to bring the city grid to the rear of the property with its square geometric forms, while the front is transformed to face the city grid with an amorphic design which is fluid and embracing of the body of water that lurks hidden a few hundred feet away.






























