 
     226  N  K 
Location          : LAKE WORTH BEACH,   FL 
Area                      : 4,008 S.F.   
Phase                  : complete
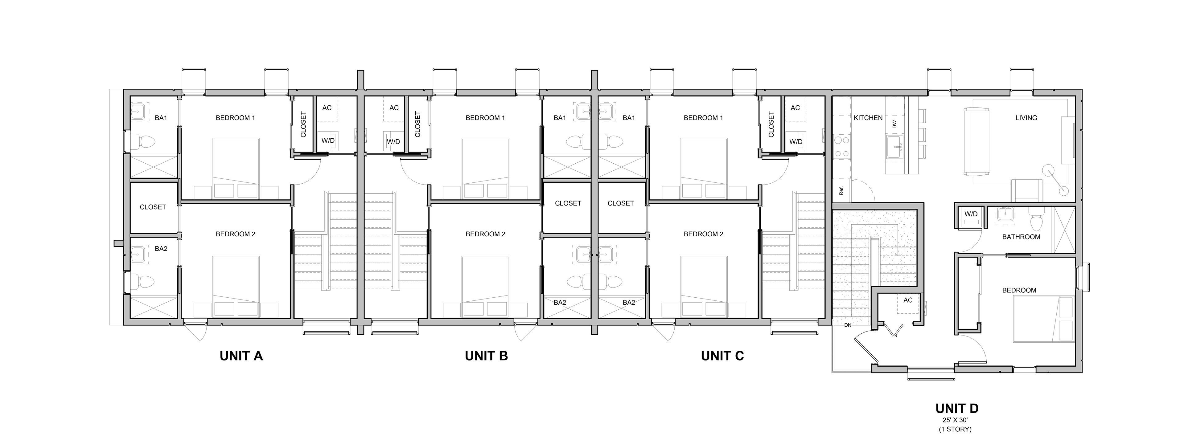
tHE FOUR UNIT MULTIFAMILY PROJECT IN lake worth BEACH IS AN URBAN INTERVENTION WITH three 2000 SF UNITS, and one 1000 sf unit. FITTING INTO AN URBAN LOT THAT WAS 50 FT WIDE BY 135FT LONG. shaded parking is provided in the rear under the smaller unit. THESE townhome/APARTMENTS arE MEANT TO HOUSE MID INCOME APARTMENT DWELLERS THAT enjoy the amenity of a private GREEN SPACEs FOR FAMILY LIFE.
 
      
      
      
      
      
      
      
      
     VISUAL RENDERINGS PROVIDED FOR CLIENT :
 
      
      
      
      
      
     interior images of built units:
 
      
     