
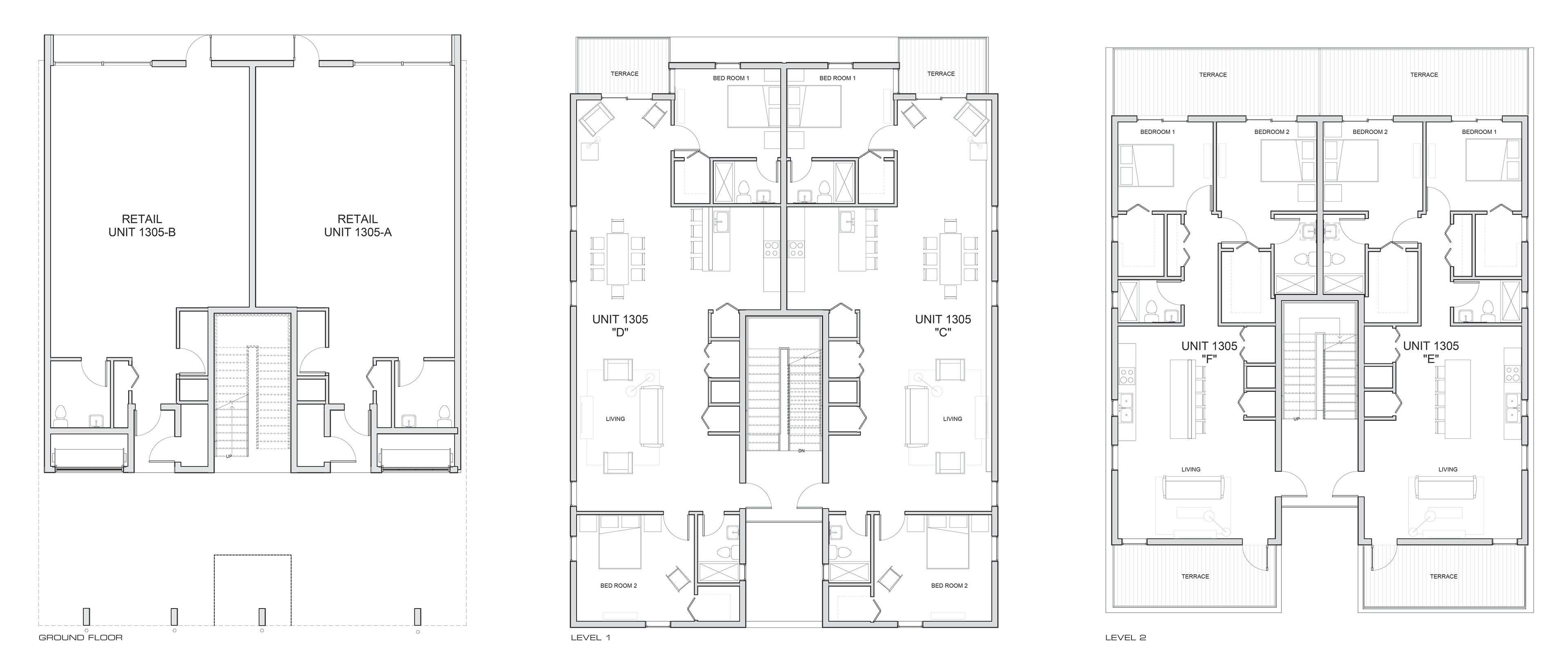
1305 lucerne ave
Location : lake worth , FL
Area : 9,000 S.F.
Phase : Design Development
Multi-Family 4-unit building with ground floor retail units located in the heart of the urban arts district in Lake Worth







